Investment or Owner-User Opportunity | Turnkey Multi-Use Facility on 1.93 Acres
Offered for sale at $2,100,000, this exceptionally maintained and highly flexible commercial building presents a rare opportunity for an owner-user or investor seeking a turnkey asset with immediate functionality.
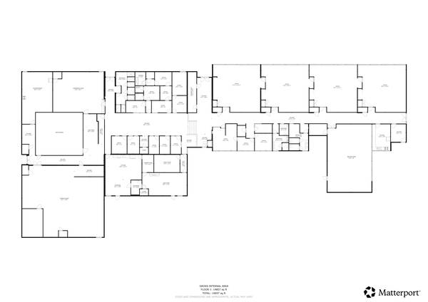
Situated on a 1.93-acre lot with abundant on-site parking, the property is currently configured for multi-tenant occupancy, yet its thoughtful layout allows for single-user occupation or continued multi-tenant operations without major reconfiguration.
The building features 19 private offices of varying sizes, multiple conference rooms, restrooms, large assembly areas, and fully equipped kitchens, creating a dynamic environment that supports both focused work and collaborative team use. Interconnecting office layouts provide privacy where needed, while still allowing departments or teams to integrate seamlessly for meetings, training, or group functions.
The space benefits from excellent natural and interior lighting, a clean, modern finish, and a flexible floorplan that can easily adapt to a wide range of business operations. The property is ADA accessible, featuring ramps and a built-in wheelchair lift, ensuring compliance and ease of access for employees and visitors alike.
With its turnkey condition, generous parking capacity, and scalable interior layout, the building is ready for immediate occupancy with minimal capital investment.
Ideal Uses Include (but are not limited to):
- Corporate or regional headquarters
- Professional services (law, accounting, engineering, consulting)
- Educational, training, or vocational facilities
- Faith-based or nonprofit organizations
- Call centers or administrative hubs
- Tech, design, or creative office environments
- Co-working or shared office concepts
Occupy the entire building for a single operation or continue operating as a multi-tenant investment, leveraging the existing layout to support diversified income streams.
Zoned: P2 - Public, Civic and Institutions
For more information contact Erik Caseres at 406.861.4742